✨ Due Appartamenti + Box in Centro Storico: Occasionissima all’Asta per Investitori e Famiglie! ✨

In vendita
Appartamento
Vergiate
84.000 €
Descrizione
Imperdibile opportunità all’asta: proponiamo due appartamenti adiacenti più box, inseriti in un caratteristico contesto di corte del centro storico. Una soluzione unica, perfetta per chi cerca un immobile da personalizzare, per investimento o per creare una doppia unità abitativa moderna e funzionale.

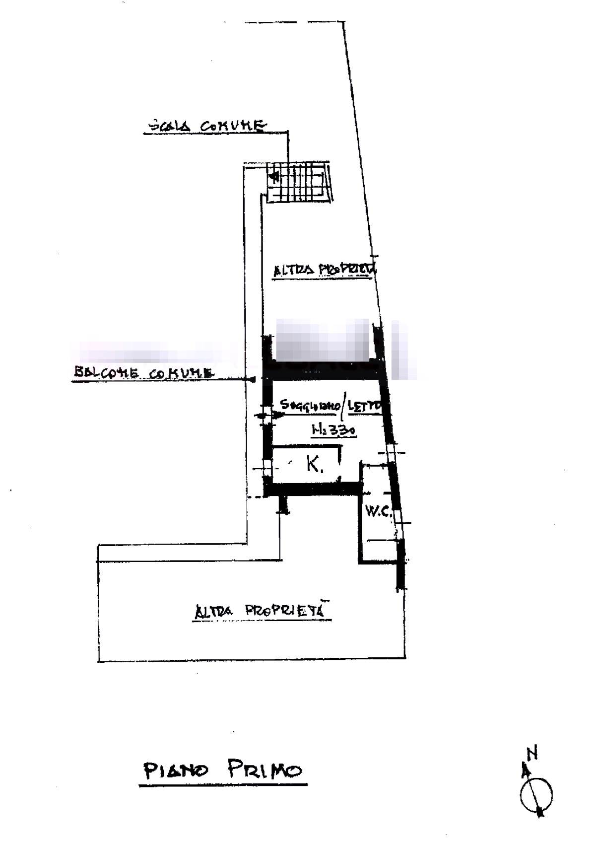
Il primo appartamento, situato al piano primo, si apre con un’accogliente zona giorno, cucina separata, camera matrimoniale e bagno. Ambienti ben distribuiti, luminosi e con un taglio ideale per una giovane coppia o per chi desidera una rendita garantita dal mercato delle locazioni.

Il secondo appartamento, anch’esso al piano primo e con ingresso dal ballatoio comune, offre spazi più ampi: soggiorno luminoso, cucina abitabile, due camere da letto, balconcino e bagno. La disposizione lo rende ideale come abitazione principale, come bilocale da ampliare o come investimento da destinare ad affitti tradizionali o a lavoratori fuori sede.

Completa la proprietà un box, sempre compreso nella vendita, indispensabile in centro e molto richiesto.

La posizione è strategica: zona tranquilla, servita, a pochi passi da negozi, scuole, servizi e collegamenti.
La particolare configurazione del lotto consente molte possibilità:
• creare un unico grande appartamento su tutto il piano
• mantenere le due unità per massimizzare la redditività
• abitare un appartamento e affittare l’altro

Una soluzione rara sul mercato, soprattutto considerando il prezzo di aggiudicazione potenzialmente molto vantaggioso rispetto al valore reale.

Per informazioni dettagliate e per partecipare all’asta, è possibile rivolgersi all’Agenzia Immobiliare Il Cortiletto, che fornisce assistenza completa in tutte le fasi: analisi dei documenti, presentazione dell’offerta, supporto durante la gara e accompagnamento fino all’aggiudicazione.

Un’opportunità che unisce carattere, potenzialità e convenienza: ideale per investitori, famiglie e chi desidera un progetto di valore.
Caratteristiche principali
Codice:
Vergiate VA 84.000,00Mk
Città:
Vergiate
Categoria:
Appartamento
Locali:
7
Bagni:
1
Mq:
138
Data prossima asta:
25/06/2026
Classe energetica:
Non applicabile
Mappa
Viale bioso , 6 - Vergiate (VA)
Cookie preference